合景裝飾20年大品牌,精耕辦公裝修市場,提供規劃設計、采購、施工等一站式服務,得到客戶“高回頭率 高滿意度”的肯定,曾獲得CCTV2頒發的“優秀設計團隊”獎
2019-07-15
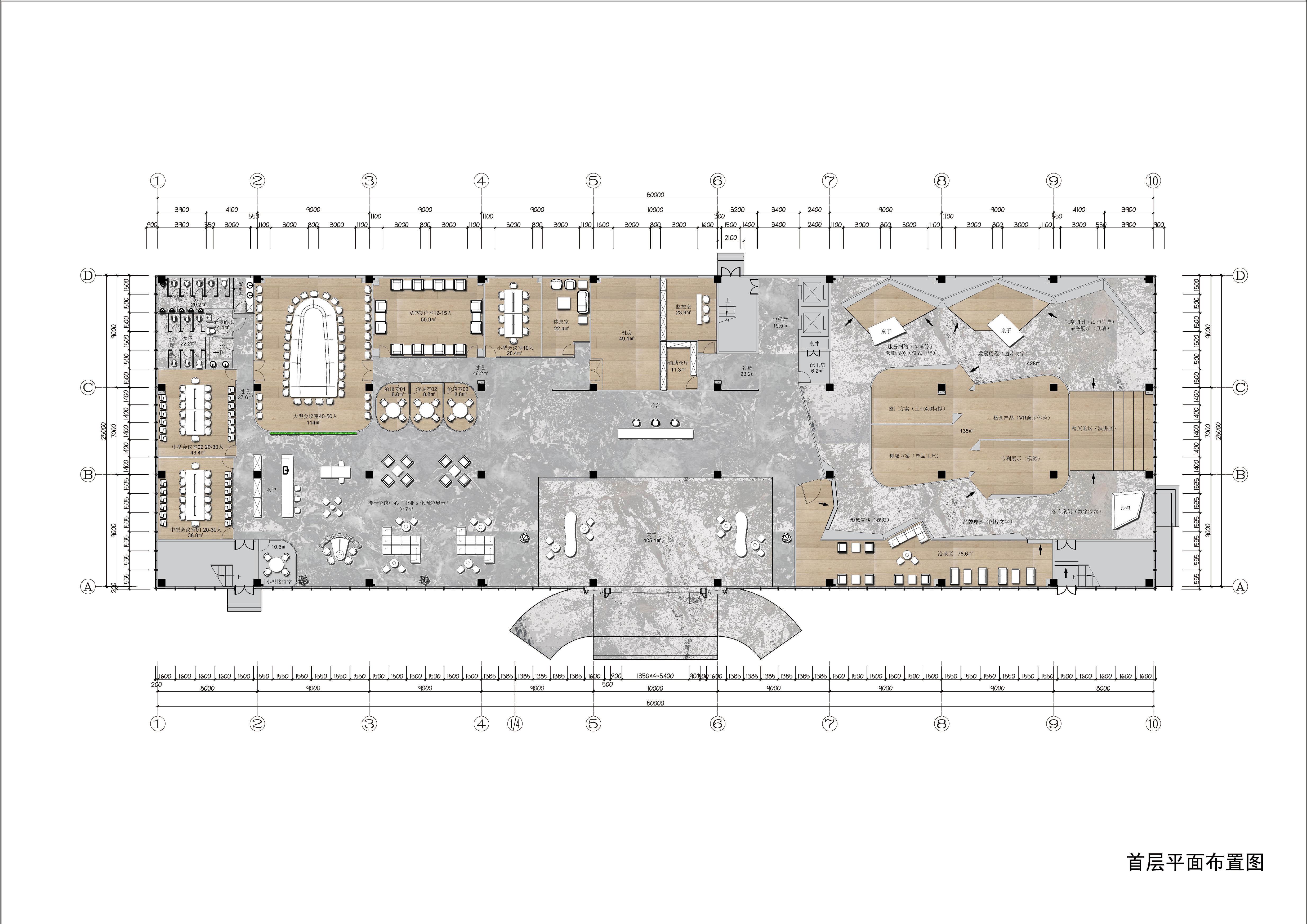
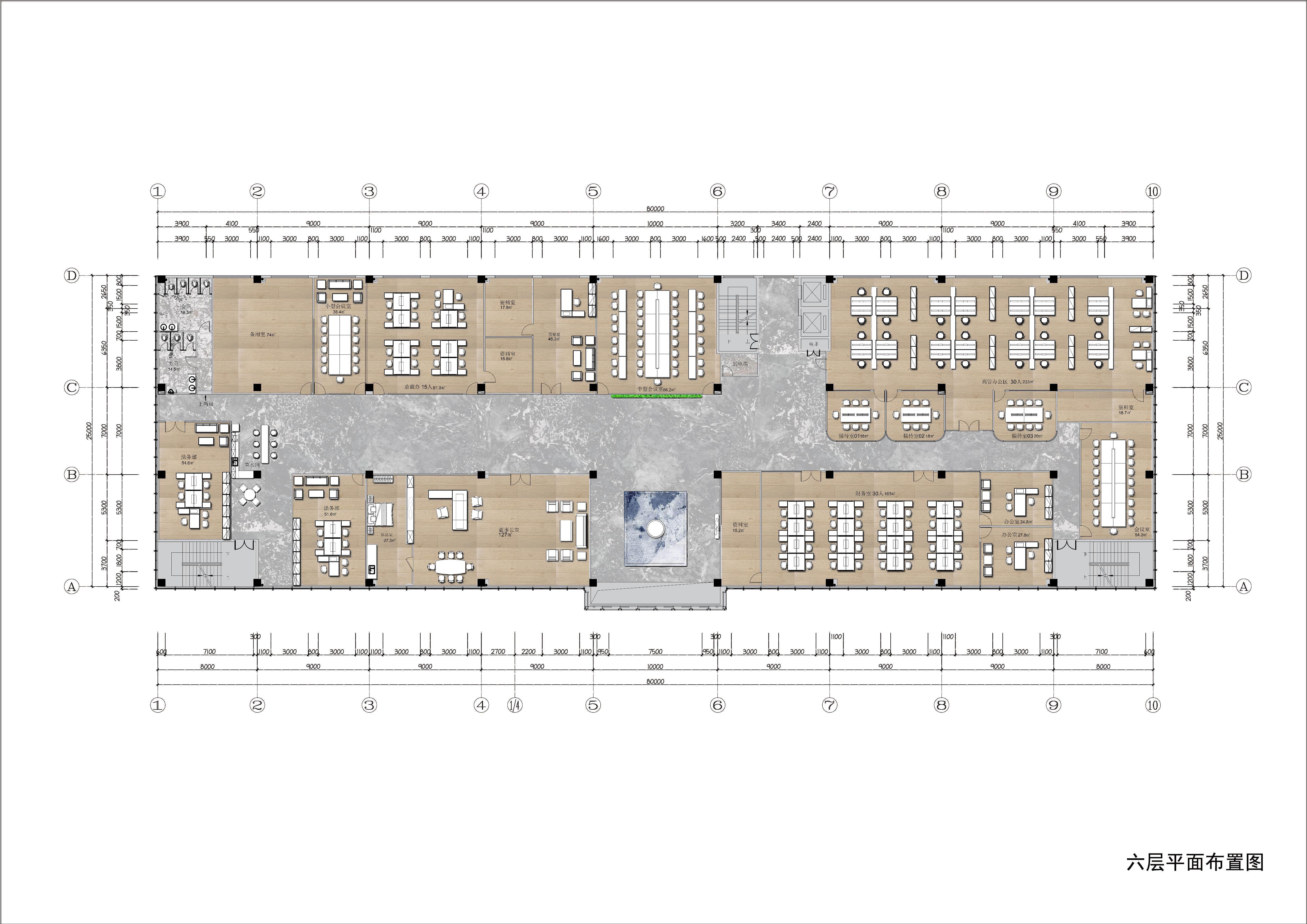
合景裝飾合作單位廣東拓斯達科技股份有限公司(簡稱:拓斯達,股票代碼:300607)是一家登陸創業板的廣東省機器人骨干企業,專注于以工業機器人為代表的智能裝備的研發、制造、銷售,致力于成為系統集成+本體制造+軟件開發+工業互聯網四位一體的智能制造綜合服務商。
拓斯達是高新技術企業、廣東省級企業技術中心,獲評廣東省高成長性中小企業。2014年,被《福布斯》雜志評為“中國非上市潛力企業百強”第30名;2015年,被國際四大會計師事務所之一安永聯合復旦大學評為“中國最具潛力企業”; 2016年,被評定為廣東省機器人骨干企業;2017年,被恰佩克評為“2017年度中國十大系統集成商”;2014至2018年度獲得高工金球獎等多項榮譽。






















OTHER