合景裝飾20年大品牌,精耕辦公裝修市場,提供規劃設計、采購、施工等一站式服務,得到客戶“高回頭率 高滿意度”的肯定,曾獲得CCTV2頒發的“優秀設計團隊”獎
合景裝飾自成立以來一直堅持走施工總包化的總體規劃路線,擁有建筑裝修裝飾工程專業承包壹級、建筑工程施工總承包貳級
榮獲建筑裝修裝飾工程專業承包壹級、建筑裝飾工程設計專項乙級證書、守合同重信用企業、建筑裝飾協會推薦單位
2011年合景公司成立;先后服務于卡爾蔡司、比亞迪、廣汽集團、錦富技術、飛鶴乳業、立高食品等世界500強企業與合景公司多次合作,好口碑,更值得信任。
合景裝飾經過多年在實踐中不斷磨礪和完善,形成以誠為本,以品樹牌的文化理念,它承載著全體合景人追求夢想與希望
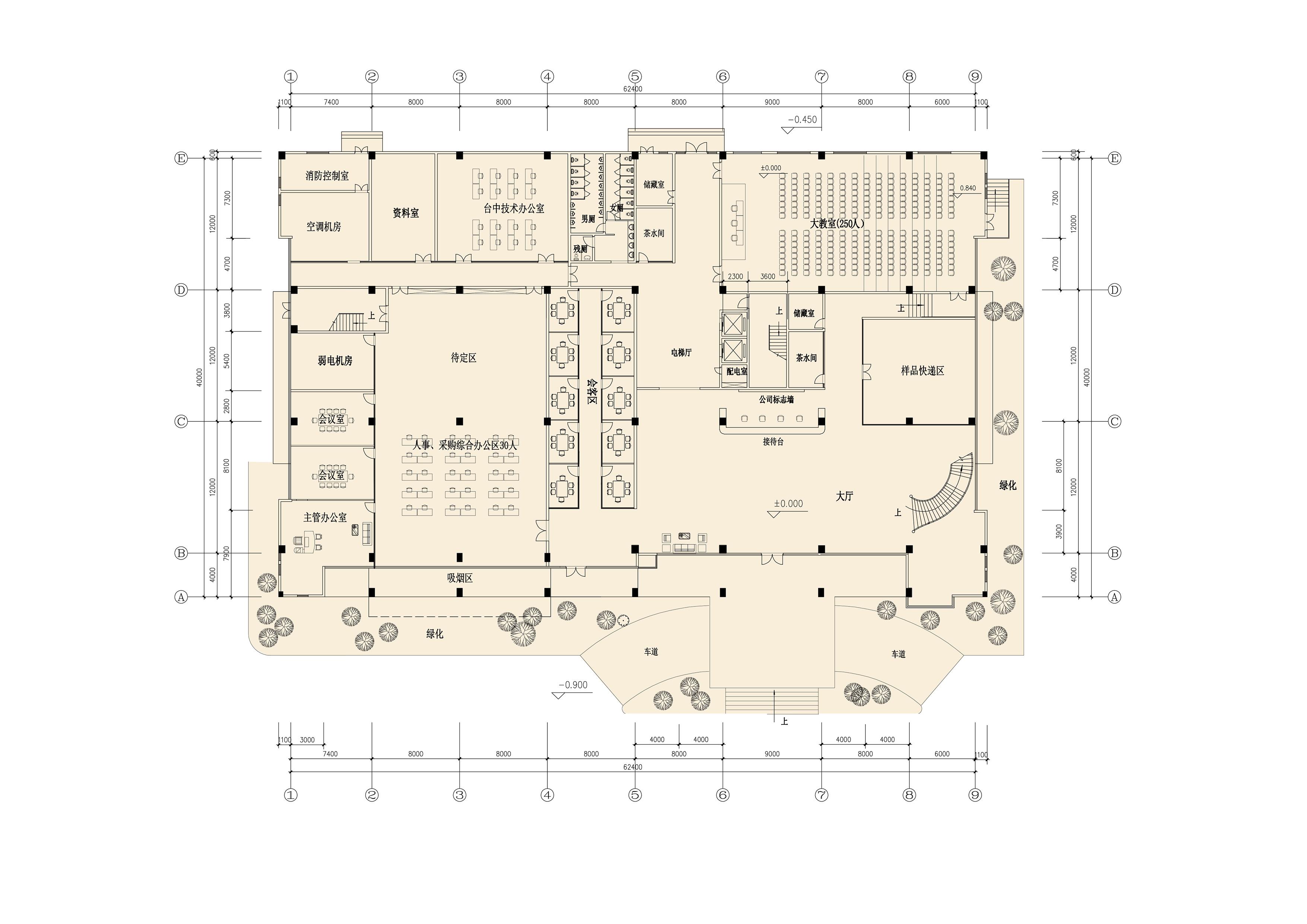
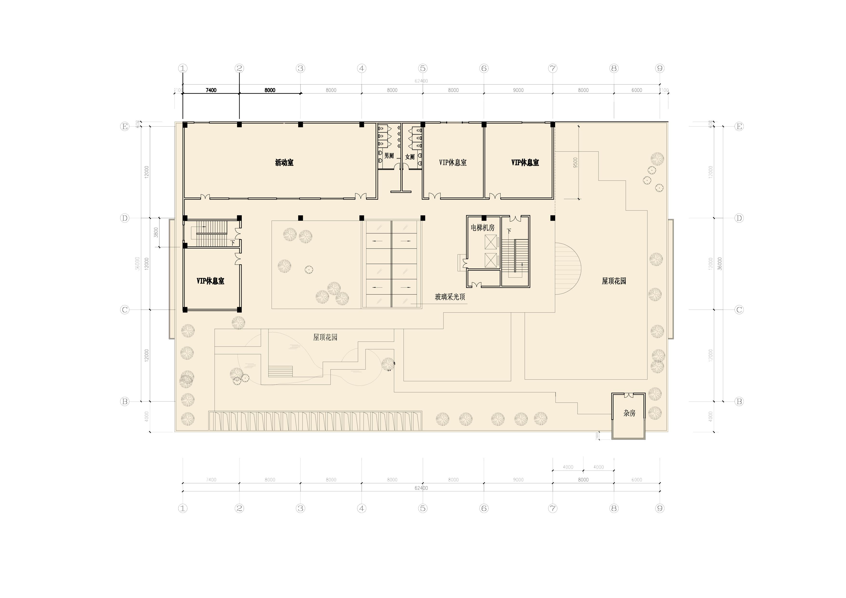
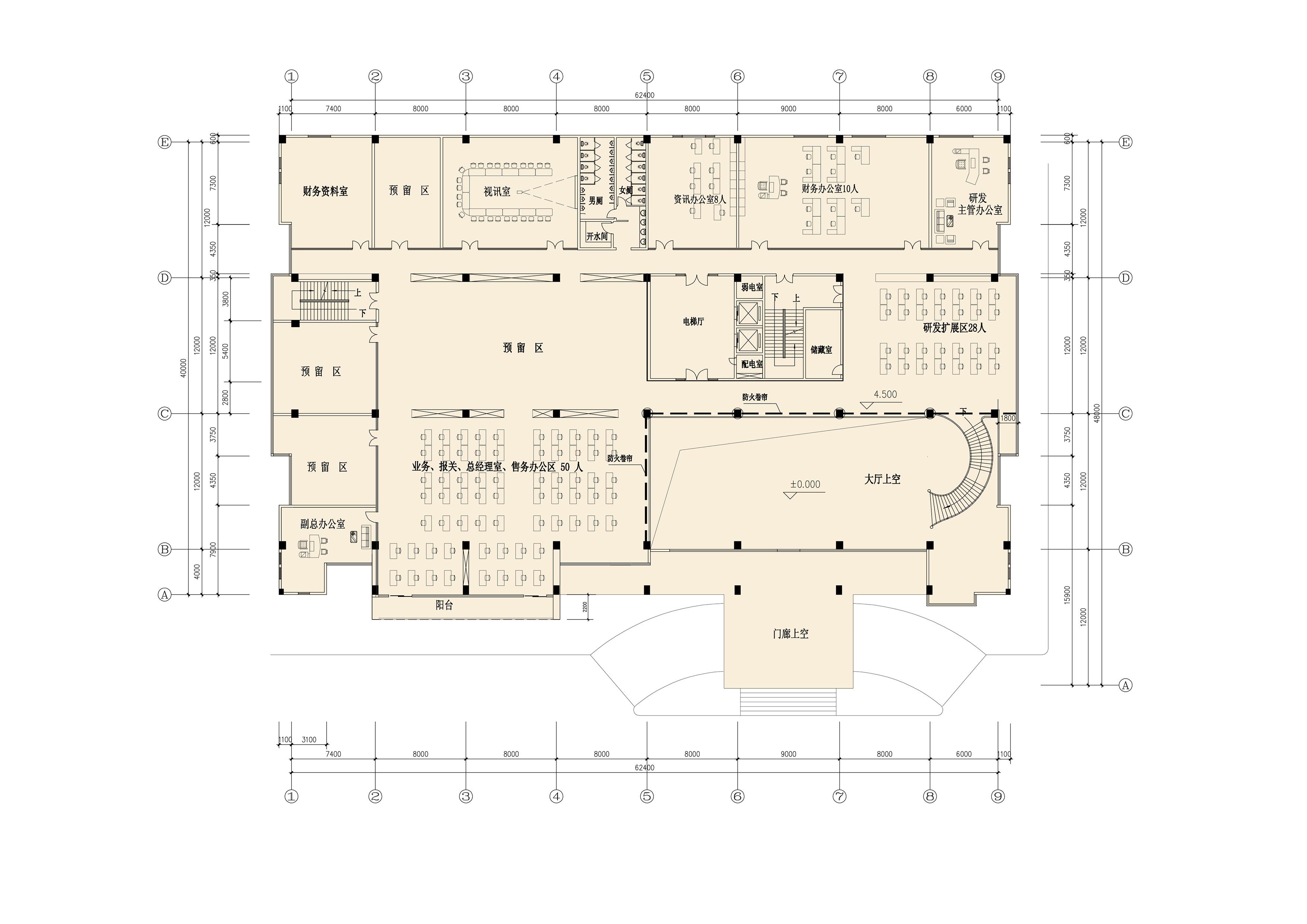
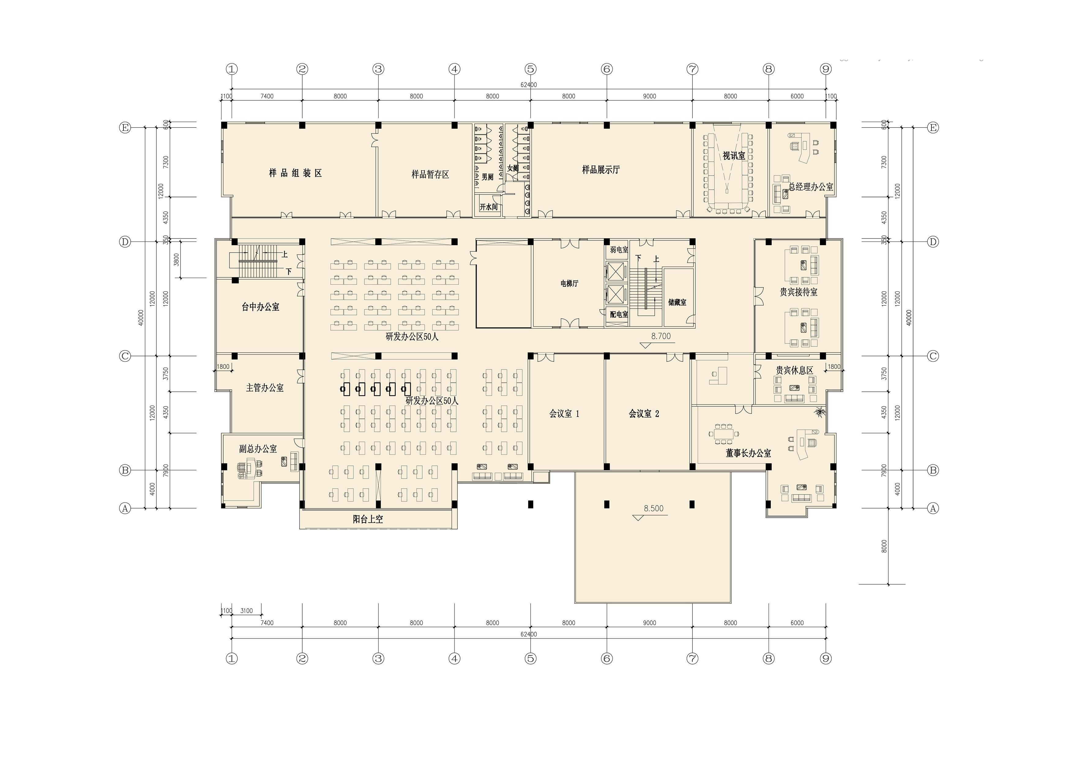
致力于辦公室、寫字樓、廠房、展廳等設計裝修,并提供設計、裝修、消防、機電、智能、配套建設一體化服務
致力于綜合空間、學校、醫院、圖書館等設計裝修,并提供設計、施工、消防、機電、智能、配套建設一體化服務
致力于酒店、會所、餐廳等設計裝修,并提供設計、裝修、消防、機電、智能、配套建設一體化服務
致力于房產建筑領域的設計裝修,并提供設計、裝修、消防、機電、智能、配套建設一體化服務
合景裝飾秉承“合作共贏,共創未來”的價值觀,以創新的設計、科學施工管理,完成了一個又一個的經典案例,得到客戶高度認可
135-2798-0000
135-2798-0000 186-6511-0000
合景秉持“尊重人的價值、開發人的潛能,為員工提供不斷發展的平臺,幫助員工實現和提升自身價值,能者居前
2019-07-15
合景裝飾合作單位東莞美爾頓車業有限公司是一家國際化集團企業,主要生產滑板車、電動車、健身及運動器材等系列出口產品。
OTHER
拓斯達科技股份有限公司裝修效果圖
鴻利達模具有限公司裝修效果圖
萊帝亞照明科技公司裝修效果圖
關注官方微信公眾號
總部地址:
東莞市東縱大道盈鋒商務中心A座(合景集團)
客服郵箱:wl@hejsy.com
采購郵箱:cg@hejsy.com
工作時間:
9:00AM——21:00PM
合景智慧建設(廣東)有限公司 地址:東莞市東縱大道盈鋒商務中心A座(合景集團) 版權所有 粵ICP備11094277號 網站地圖
回到頂部